Projets et réalisations

Les chalets soleil
Mission partielle
La Chapelle d'Abondance 2026

Création d'un ensemble de 6 logements revisitant la typologie du chalet en cascade
Design, dossier d'autorisation de travaux 
et plans techniques: Olivier Azémar
Maîtrise d'oeuvre privée
Budget de travaux: NC

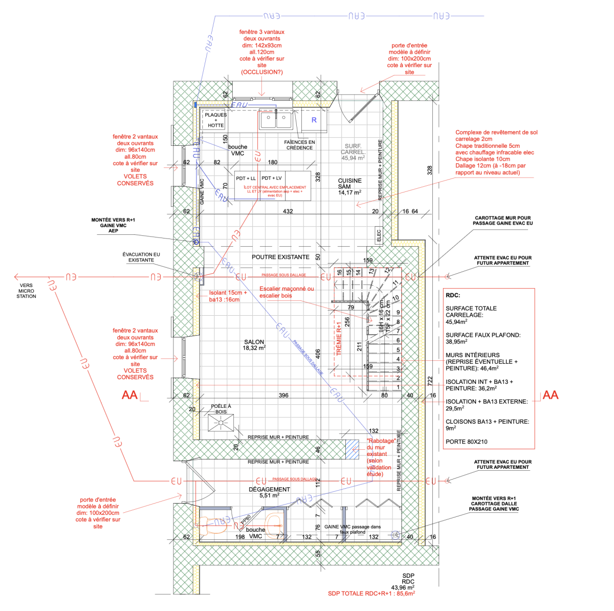
Grange Maison Baron
Mission partielle
Allonzier-la-Caille 2025

Projet d'aménagement des extérieurs d'une grange traditionnelle
Design, dossier d'autorisation de travaux 
et plans techniques: Olivier Azémar
Maîtrise d'oeuvre privée
Travaux en cours
Budget de travaux: NC

Maison Glycine
Mission partielle
Gruffy 2025

Ensemble de bâtiments traditionnels classés 
Projet d'aménagements intérieurs (75m2 habitables) et extérieurs respectant le bâti traditionnel
Design, dossier d'autorisation de travaux 
et plans techniques: Olivier Azémar
Maîtrise d'oeuvre: Pierre Vaudaine d'Activ'travaux
Budget de travaux: 250.000€TTC

Maison Poulain
Mission partielle
Massongy 2025

Projet de réhabilitation d'une grange traditionnelle en deux logements d'une surface habitable totale de 250m2
Design, dossier d'autorisation de travaux 
et plans techniques: Olivier Azémar
Maîtrise d'oeuvre privée
Travaux en cours
Budget de travaux: 290.000€TTC

Le chalet Laurent
Mission d'études
 Pralognan-la-Vanoise 2025

Ensemble d'études de faisabilité pour déterminer la rentabilité d'un projet d'aménagement d'une maison traditionnelle existante
Études: Olivier Azémar
Projet abandonné


Maison Sylvaine 
Mission complète
Sciez-sur-Léman 2024

Rénovation d'un mazot existant de 45m2 et création d'un logement individuel de 115m2
Durée du chantier 9 mois
Design, dossier d'autorisation de travaux 
et maîtrise d'oeuvre: Olivier Azémar
Budget total (études diverses et travaux): 490.000€TTC

La colonie de Chevaline
Mission partielle
Chevaline 2023

Réhabilitation et extension d'un lien d'hébergement en un ensemble de trois logements
Design, dossier d'autorisation de travaux 
et plans techniques: Olivier Azémar
Maîtrise d'oeuvre privée
Projet en cours de réalisation
Budget de travaux: 390.000€TTC

La terrasse de Maxime
Mission partielle
Veyrier-du-Lac 2023
Création d'une terrasse intégrée au tissu bâti traditionnel 
du centre de Veyrier-du-Lac
Design et dossier d'autorisation de travaux: Olivier Azémar
Maîtrise d'oeuvre privée
Budget: NC

Maison individuelle ossature bois
Mission d'étude
Archamps 2023

Design d'une maison individuelle moderne en ossature bois
Design: Olivier Azémar
Projet non réalisé

Maison Gognau
Mission partielle
Aix-les-Bains 2023

Rénovation intérieure et extérieure d'une maison de ville
Design et dossier d'autorisation de travaux: Olivier Azémar
Maîtrise d'oeuvre privée
Budget: NC

Chalets Gallay
Mission d'étude
Châtel 2023

Création de deux chalets traditionnels
Design et dossier d'autorisation de travaux: 
Olivier Azémar & UM architectes
Maîtrise d'oeuvre privée
Budget: NC

Ensemble de 8 logements
Mission d'études
Reignier-Esery 2023

Création de deux immeubles de 8 logements
Design: Olivier Azémar
Projet non réalisé

Projet Demaison
Mission complète
Villard de Vésonne 2023

Rénovation intérieure et extérieure d'un logement traditionnel savoyard
Design, dossier d'autorisation de travaux 
et maîtrise d'oeuvre: Olivier Azémar
Budget total (études et travaux): 132.000€TTC

Car-port et sas d'entrée
Mission partielle
Vaulx 2022

Création d'un sas d'entrée et d'une micro architecture à usage de car port et de stockage de matériel de jardinage
Design, dossier d'autorisation de travaux 
et plans techniques: Olivier Azémar
Maîtrise d'oeuvre privée
Budget de travaux: 29.000€

Maison Desantini
Mission partielle
Saint Ferréol 2022

Rénovation d'un logement et d'une grange à Saint Ferréol
Design et dossier d'autorisation de travaux: Olivier Azémar
Maîtrise d'oeuvre privée
Budget de travaux: NC

Maison Capuano
Mission partielle
Bonneville 2021

Rénovation d'une habitation traditionnelle savoyarde à Bonneville
Design, dossier d'autorisation de travaux et plans techniques: Olivier Azémar
Maîtrise d'oeuvre privée
Budget de travaux: NC

Le Prieuré
Mission partielle
Genève 2020

Ensemble de logements et local commercial développé en collaboration avec Ubaldo Martella
Design et dossier d'autorisation de travaux: 
Olivier Azémar & UM Architectes
Projet non réalisé

Ensemble de 17 logements collectifs
Mission partielle
Lausanne 2020

Immeuble de logements collectifs à Lausanne
Design et dossier d'autorisation de travaux: Olivier Azémar & Ubaldo Martella
Réalisation: UM Architectes
Budget de travaux: NC

BVSC Beauregard
Concours
Neuchâtel 2020

Ensemble de logements et amménagement paysagers développé en collaboration avec Ubaldo Martella
Design: Olivier Azémar & UM Architectes
Projet non réalisé

Le "Code Barre"
Réhabilitation d'un entrepôt en locaux commerciaux

Mission complète
Sévrier 2016-2019

Partant d'un entrepôt de 2000m2, création de 6 lots de locaux commerciaux et rénovation de l'aspect extérieur.
Design, dossier d'autorisation de travaux 
et maîtrise d'oeuvre: Olivier Azémar
Budget de travaux: NC

Les cabanes de l'urgence
Concours Festival des cabanes
Val de Chaise 2018

Les cabanes de l'urgence
Design et réalisation: Olivier Azémar, Michel Nicoletti,
Magalie Ehret Noziglia, Sophie Martin et Stéphane Facile
Budget de travaux: 5.000€TTC

Le Capella
Ravalement de façades

Mission complète
Annecy 2017

Relooking des façades de l'immeuble en collaboration avec l'artiste coloriste Sophie Garcia
Design, dossier d'autorisation de travaux 
et maîtrise d'oeuvre: Olivier Azémar
Budget de travaux: NC

Maison Bouchet
Projet de maison individuelle
Mission partielle
Marlioz 2017

Maison individuelle, toiture plate végétalisée.
Design et dossier d'autorisation de travaux: Olivier Azémar
Maîtrise d'oeuvre: Atelier d'Architecture Michel Nicoletti
Budget de travaux: NC

Bureaux d'agence immobilière
Réhabilitation d'un restaurant en locaux de bureaux

Mission partielle
Annecy 2017

Design et dossier d'autorisation de travaux: Olivier Azémar
Maîtrise d'oeuvre: Atelier d'Architecture Michel Nicoletti
Budget de travaux: NC

Construction d'un entrepôt 
et de bureaux
Mission partielle
Seynod 2017

Création d'un local professionnel de stockage et de bureau.
Design et dossier d'autorisation de travaux: Olivier Azémar
Maîtrise d'oeuvre: Atelier d'Architecture Michel Nicoletti
Budget de travaux: NC

Pan & Gato
Extension d'une boulangerie

Mission complète
Annecy-le -Vieux 2017

Extension de la surface des ateliers de fabrication de la boulangerie Pan & Gato d'Annecy le Vieux.
Architecte d'intérieur: Jean Brunot
Design et maîtrise d'oeuvre: Olivier Azémar
Budget de travaux: NC

Maison du Thiou
Rénovation et extension
Mission de maîtrise d'oeuvre
Cran Gévrier 2016

Rénovation et extension d'une habitation existante 
Extension du volume donnant sur le Thiou
Design: Perrine Voinson
Maîtrise d'oeuvre: Olivier Azémar

Budget de travaux: 480,000€ TTC

"Blue Box"
Rénovation d'un appartement

Mission complète
Annecy 2015

Rue du président Favre à Annecy. 
Rénovation complète d'un appartement avec ilôt central "blue box", un contenant de mémoire de la couleur du chèche que l'habitant portait lors de ses expéditions passées.
Design et maîtrise d'oeuvre
Surface rénovée: 90m2
Budget de travaux: 80.000€ TTC

Showroom SESAM
Rénovation intérieure
Mission complète
Cran Gévrier 2015

Réalisation d'un showroom des produits 
et des bureaux l'entreprise SESAM
Design et maîtrise d'oeuvre: Olivier Azémar
Budget de travaux: 75.000€ TTC

Recherche